Skip to main content

The Ford Motor Company is expanding its operations in Oakville with the construction of a gigantic stamping plant.

The transformation of the Ford Oakville Assembly Plant, at 1400 The Canadian Rd., is a comprehensive overhaul of the facility from a gas vehicle assembly operation into an Electric Vehicle manufacturing complex.

Ford said in a press release this move paves the way to bring multi-energy technology to the next generation of F-Series Super Duty trucks, giving customers more freedom of choice and supporting Ford’s electrification plans.

The plant ceased production of the Ford Edge in May 2024.

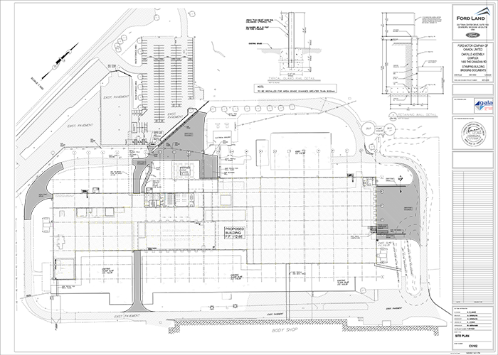
In a site plan application to the Town of Oakville, the automotive giant outlined the construction of “a new, 26,800-square-metre part stamping facility on an existing concrete pad, which housed a former paint facility on the site. The previous building has since been demolished.”

In a 2024 press release from Ford, it was stated the company planned to invest $2.3 billion (part of an overall $3 billion investment) to install assembly and integrated stamping operations at the Oakville Assembly Complex.

In a site plan application to the Town of Oakville, the automotive giant outlined the construction of a new, 26,800-square-metre part stamping facility on an existing concrete pad, which housed a former paint facility on the site.
TOWN OF OAKVILLE — In a site plan application to the Town of Oakville, the automotive giant outlined the construction of a new, 26,800-square-metre part stamping facility on an existing concrete pad, which housed a former paint facility on the site.

Initially, in October 2020, the Ontario and federal governments each committed to $295 million each as part of a $1.8 billion investment by Ford to modernize the plant for EV and battery pack assembly.

Fast forward to 2024 when Ford announced it was pivoting to produce the F-Series Super Duty trucks beginning in 2026. A decision partly motivated to meet a demand that U.S. facilities cannot keep up with.

The plan’s revision means the EV battery pack assembly line will not be installed as originally planned, but the plant is still being modernized to become a state-of-the-art stamping and assembly complex.

In a Frequently Asked Questions (FAQ) document from the Town of Oakville in response to why Ford is constructing this facility, the response was, “This construction supports the Ford+ Plan for profitable growth, including maximizing Ford’s manufacturing footprint, extending global truck leadership and expanding Ford Pro commercial business.”

The Ford+ Plan is a growth strategy that combines existing and new capabilities to create customer-centric experiences, increase value and accelerate its transition to electric vehicles.

The FAQ document goes on to explain the manufacturing methods as “in a conventional automotive stamping facility, manufacturing methods involve the transformation of metal blanks into complex automotive components through processes such as blanking, high-pressure stamping with dies, trimming, forming and rigorous quality inspections, often aided by advanced technologies and automation.”

Once production begins Ford said the Oakville plant will produce up to 100,000 units of the Super Duty pickups annually.

Construction began this past summer and is scheduled to be completed in 2026, with production anticipated to start in that year.

A banner located on the side of the project shows EllisDon, Walters Group and Walbridge are the constructors, with the International Union of Operating Engineers Local 793 banner showcasing their members’ involvement.

Ford reports the Super Duty assembly plant will initially secure approximately 1,800 jobs at the Oakville Assembly Complex.

“Our economy depends on auto manufacturing here in Oakville and indeed in Ontario. Along the QEW near Ford Drive, you can see the transformation at the Oakville Assembly Plant with the new stamping facility. Our staff are working very closely with Ford to ensure they meet all their tight deadlines, so the first new trucks roll off of the line on time next year,” the Town of Oakville Mayor’s office said in a statement.

With construction visibly active, it’s appears the threat of U.S. tariffs to the Canadian automotive sector have no bearing on the project.

However, Ford representatives would not comment on the tariff issue.

“At this time, we do not have any updates or information available to share. We appreciate your interest and will be sure to contact you should any news become available, “said Kamran Niazi, Ford of Canada Communications.